Toggle navigation
Home
Despre noi
Servicii
Portofoliu lucrari
Case pe structura din lemn
Usi si ferestre din lemn
Mobilier de gradina
Mobilier de interior
Tamplarie PVC
Impregnare lemn
Pelete si brichete din lemn
Contact
SERVICII OFERITE
Servicii
Model
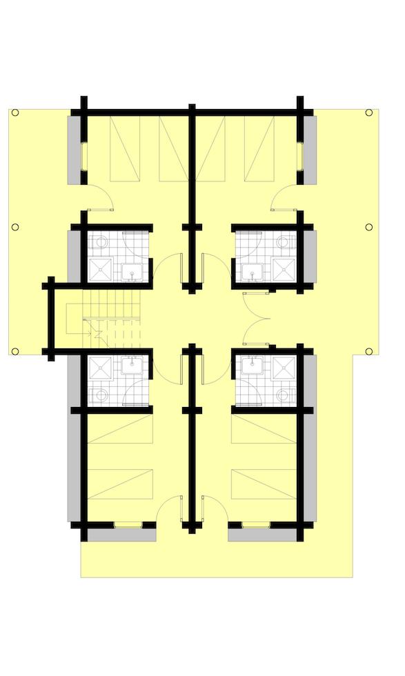
MALINI
Casa pe structura din lemn, dezvoltata pe parter si etaj mansardat
Aria desfasurata (spatii inchise ) ...
din care:
Aria desfasurata parter ...
Aria desfasurata etaj mansardat ...
Functiuni:
Parter:
...
...
...
...
Etaj:
...