loader

SERVICII OFERITE

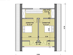
Model DENIS

Casa pe structura din lemn, dezvoltata pe parter si etaj mansardat

Aria desfasurata (spatii inchise ) = 98,20 mp

din care:

  • Aria desfasurata parter =49,10mp
  • Aria desfasurata etaj mansardat =49,10mp

Functiuni:

Parter:

  • camera de zi cu nisa de gatit
  • grup sanitar cu dus
  • terasa acoperita

Etaj:

  • 2 camere
  • balcon comun