loader

SERVICII OFERITE

Model casa PETIT

Casa de vacanta minimala pe structura din lemn, dezvoltata pe parter si supanta

Aria desfasurata (spatii inchise ) = 29,65 mp

din care:

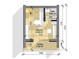
Aria desfasurata parter = 23,15 mp

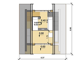
Aria desfasurata supanta = 6,50mp

Functiuni:

Parter:

  • camera de zi cu loc de gatit
  • grup sanitar cu dus
  • terasa acoperita

Supanta:

  • loc de dormit